PPH integrert flens DN15-250, DN350-400 15A-250A, 350A-400A JIS Standard

Engros høykvalitets beige PPH-muffeflens, 1,0-1,6MPa arbeidstrykk DN15-DN400, universell plastrørfitting for kloakk- og kjemisk industri, JIS-standard
Opprinnelse: Kina
Merkenavn: KXPV
Materiale: PPH
Prosess: Smidd
Tilkobling: Stikkontakt
Form: lik
Hodekode: Firkant
Farge: Beige
Størrelse: DN15-DN400
Bruksområde: Industri
Emballasje: Kartong
Arbeidstrykk: 1,0-1,6 MPa (10-25 bar)

App temperatur bundet liste
Materialee Middels temperatur℃ Materialee Middels temperatur℃
PVC-C -20℃~95℃ PVC-U -5℃~45℃
FRPP -20℃~120℃ PPH -20℃~110℃
PVDF 40℃~150℃

Produktets strukturelle egenskaper

1. Materialet har høy krystallinitet
Polymerisert fra en enkelt polypropylenmonomer, inneholder molekylkjeden ikke etylenmonomer; molekylkjeden har høy regularitet og lang levetid;
2. God korrosjonsbestandighet
Den tåler korrosjon av høykonsentrasjonssyrer og alkalier med en pH-verdi fra 1 til 14 innenfor et visst område;
3. Varmebestandig og energisparende
Det gjeldende temperaturområdet er fra -20°C til 110°C; den termiske ledningsevnen er liten og har god varmeisolasjonsytelse;
4. Pålitelig tilkoblingssytelse
Styrken til smelteforbindelsen til dette produktet er høyere enn rørkroppen, og skjøten vil ikke bli frakoblet på grunn av jordbevegelse eller belastning;
5. God konstruksjonsytelse
Dette produktet er lett i vekt, har enkel sveiseprosess, praktisk konstruksjon, lave totale prosjektkostnader og kan møte komplekse prosessrørledninger; PPH rørledningssystemer er mye brukt i galvanisering, etsing, kjemisk industri, farmasøytisk, kloakkbehandling, miljøteknikk og andre industrier.

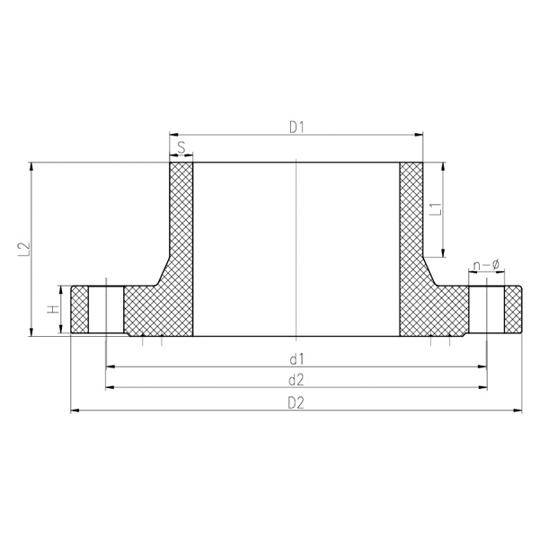
PPH integrert flens

DN D1 D2 d1 d2 S L1 L2 H n-Ø Merknad (monteringshull)
15 20 95 60 70 2.5 50 72 12 4-Ø15X20 PN10/16/US/Japan
20 25 105 70 75 2.7 50 74 14 4-Ø15X17,5 PN10/16/US/Japan
25 32 115 79 85 3 50 78 16 4-Ø15X18 PN10/16/US/Japan
32 40 140 89 100 3.7 50 78 16 4-Ø19X24,5 PN10/16/US/Japan
40 50 150 98 110 4.6 50 80 18 4-Ø19X25 PN10/16/US/Japan
50 63 165 120 125 5.8 50 83 18 4-Ø19x21,5 PN10/16/US/Japan
65 75 185 140 145 6.9 55 88 18 4-Ø19x21,5 PN10/16/US/Japan
80 90 200 150 160 8.2 55 90 20 8-Ø19X24 PN10/16/US/Japan
100 110 229 175 191 10 55 90 20 8-Ø19X27 PN10/16/US/Japan
125 140 254 210 216 12.7 60 110 25 8-Ø18X21 PN10/16/US/Japan
150 160 285 240 241 14.6 60 115 30 8-Ø22X23 PN10/16/US/Japan
250 280 406 350 362 25.4 60 127 35 12-Ø22X28 PN10/16/US/Japan
400 400 597 510 540 36.3 63 160 50 16-Ø26X41 PN10/16/US/Japan
Tilbakemelding på melding
Om oss
Kaixin Pipeline Technologies Co., Ltd.
Grunnlagt i 1999, Kaixin Pipeline Technologies Co., Ltd. er en høyteknologisk bedrift som integrerer FoU, produksjon, salg og service. Selskapet har flere prestisjetunge sertifiseringer, inkludert National High-Tech Enterprise, "Little Giant" Specialized and Sophisticated SME, National Single Product Champion (Cultivation), Provincial Technology-based SME, Ningbo Specialized and Sophisticated SME, Ningbo Single Product Champion (Cultivation), Ningbo PolymerD Center for Green Pipe & Factory Technology, N-Leveling Technology, N-Leveling Technology. Innovasjon Enterprise og Enterprise Data Management Capability Modenhetsnivå 2.
Vi er spesialister på å utvikle, produsere og levere ikke-metalliske korrosjonsbestandige produkter for kjemiske applikasjoner, inkludert plastventiler, rør, rørdeler og korrosjonsbestandige pumper. Vår produktportefølje spenner over materialer som PVC-C, PVC-U, PVDF, PPH og FRPP, med et omfattende utvalg av typer og spesifikasjoner. Spesielt kan våre spjeldventiler nå DN1000 i diameter, mens rør og fittings strekker seg opp til DN800, og adresserer markedshull og opprettholder vårt konkurransefortrinn i bransjen.
Veiledet av prinsippet om "teknologidrevet, holde tritt med tiden", tildeler Kaixin nesten 10 millioner RMB årlig til FoU. Vi sikrer overlegen produktkvalitet gjennom standardisert automatisert produksjon og streng innkjøp av importerte råvarer. I tråd med vår internasjonale utviklingsstrategi overvåker vi kontinuerlig globale markedstrender og utnytter digitale kanaler for å bringe høykvalitets "Made in China"-produkter til kunder over hele verden.
Ningbo • Fenghua FoU og produksjonsbase
Med en total investering på RMB 200 millioner har Kaixin Ultra-Pure Pipe Technology (Ningbo) Co., Ltd. etablert et nytt materiallaboratorium i samarbeid med universiteter og forskningsinstitutter, bygget en moderne produksjonsbase og installert 8 helautomatiserte produksjonslinjer for modifisert plast og 8 for polymermaterialer. Anlegget er dedikert til FoU, produksjon og bruk av nye modifiserte plast- og polymermaterialer. Kaixin er også forpliktet til å tiltrekke topptalent på tvers av disipliner, kontinuerlig drive produktinnovasjon og merkevareutvikling, med målet om å bli en globalt anerkjent leder innen FoU og produksjon av polymerventiler, rør og fittings.
Hedersbevis
  • honor
  • honor
  • honor
  • honor
  • honor
  • honor
  • honor
  • honor
  • honor
Nyheter