PPH Butt-Weld Reducer DN50*40-300*250 GB Standard

Earthy Yellow PPH  But-Weld Reducers DN50*40-300*250 Custom 4 tommers industrielle plastrørkapsler for kjemikalie- og vannforsyning
Opprinnelsessted: Kina
Merkenavn: KXPV
Teknikk: Smidd
Tilkobling: stikkontakt
Materiale: PPH
Form: lik
Hodekode: Firkant
Farge: Jordgul
Størrelse: DN50*40-300*250
Bruksområde: Industri
Emballasje: Kartong
Arbeidstrykk: 1,6MPA
Leveringstid: 7 dager
MOQ: 1 stk

App temperatur bundet liste
Materialee Middels temperatur℃ Materialee Middels temperatur℃
PVC-C -20℃~95℃ PVC-U -5℃~45℃
FRPP -20℃~120℃ PPH -20℃~110℃
PVDF 40℃~150℃

Produktets strukturelle egenskaper

1. Høy krystallinitet
Laget av en enkelt polypropylenmonomer, inneholder molekylkjeden ingen etylenmonomerer; molekylkjeden er svært regelmessig og gir lang levetid.
2. Utmerket korrosjonsbestandighet
Den tåler korrosjon fra syrer og baser med høy konsentrasjon innenfor et pH-område på 1-14.
3. Varmebestandig, isolerende og energibesparende
Den kan fungere i temperaturer fra -20°C til 110°C. Dens lave varmeledningsevne gir utmerket isolasjonsytelse.
4. Pålitelig tilkobling
Smelteskjøtene er sterkere enn selve røret, og hindrer dem i å ryke på grunn av jordbevegelser eller belastninger.
5. Utmerket konstruksjonsytelse
Dette produktet er lett, har en enkel sveiseprosess, er lett å installere, og tilbyr en lav totalkostnad, egnet for komplekse prosessrør. PPH rørsystemer er mye brukt i bransjer som galvanisering, etsing, kjemikalier, farmasøytiske produkter, avløpsvannbehandling og miljøteknikk.

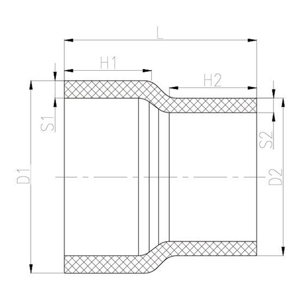
PPH støtsveisingsreduksjon

DN D1 S1 D2 S2 L H1 H2
150*65 160 14.6 75 6.8 162 40 61
150*80 160 14.6 90 8.2 159 40 61
150*100 160 14.6 110 10 153 40 61
150*125 160 14.6 140 12.7 146 40 61
200*80 225 20.5 90 8.2 200 55 62
200*100 225 20.5 110 10 194 55 62
200*125 225 20.5 140 12.7 187 55 62
200*150 225 20.5 160 14.6 182 55 62
250*100 280 25.4 110 10 234 70 62
250*125 280 25.4 140 12.7 227 70 62
250*150 280 25.4 160 14.6 222 70 62
250*200 280 25.4 225 20.5 207 70 62
300*150 315 28.6 160 14.6 247 80 62
300*200 315 28.6 225 20.5 232 80 62
300*250 315 28.6 280 25.4 225 80 70

DN D1 S1 D2 S2 L H1 H2
20*15 25 2.3 20 2 93 45 45
25*15 32 2.9 20 2 96 45 45
25*20 32 2.9 25 2.3 94 45 45
32*15 40 3.7 20 2 100 45 45
32*20 40 3.7 25 2.3 98 45 45
32*25 40 3.7 32 2.9 94 45 45
40*15 50 4.6 20 2 105 45 45
40*20 50 4.6 25 2.3 102.5 45 45
40*25 50 4.6 32 2.9 99 45 45
40*32 50 4.6 40 3.7 95 45 45
50*20 63 5.8 25 2.3 109 45 45
50*25 63 5.8 32 2.9 105.5 45 45
50*32 63 5.8 40 3.7 101.5 45 45
50*40 63 5.8 50 4.6 96.5 45 45
65*25 75 6.8 32 2.9 121.5 50 50
65*32 75 6.8 40 3.7 117.5 50 50
65*40 75 6.8 50 4.6 112.5 50 50
65*50 75 6.8 63 5.8 106 50 50
80*32 90 8.2 40 3.7 125 50 50
80*40 90 8.2 50 4.6 120 50 50
80*50 90 8.2 63 5.8 113.5 50 50
80*65 90 8.2 75 6.8 107.5 50 50
100*40 110 10 50 4.6 130 50 50
100*50 110 10 63 5.8 123.5 50 50
100*65 110 10 75 6.8 117.5 50 50
100*80 110 10 90 8.2 110 50 50
125*50 140 12.7 63 5.8 155 35 61
125*65 140 12.7 75 6.8 152 35 61
125*80 140 12.7 90 8.2 149 35 61
125*100 140 12.7 110 10 143 35 61
150*50 160 14.6 63 5.8 165 40 61

Tilbakemelding på melding
Om oss
Kaixin Pipeline Technologies Co., Ltd.
Grunnlagt i 1999, Kaixin Pipeline Technologies Co., Ltd. er en høyteknologisk bedrift som integrerer FoU, produksjon, salg og service. Selskapet har flere prestisjetunge sertifiseringer, inkludert National High-Tech Enterprise, "Little Giant" Specialized and Sophisticated SME, National Single Product Champion (Cultivation), Provincial Technology-based SME, Ningbo Specialized and Sophisticated SME, Ningbo Single Product Champion (Cultivation), Ningbo PolymerD Center for Green Pipe & Factory Technology, N-Leveling Technology, N-Leveling Technology. Innovasjon Enterprise og Enterprise Data Management Capability Modenhetsnivå 2.
Vi er spesialister på å utvikle, produsere og levere ikke-metalliske korrosjonsbestandige produkter for kjemiske applikasjoner, inkludert plastventiler, rør, rørdeler og korrosjonsbestandige pumper. Vår produktportefølje spenner over materialer som PVC-C, PVC-U, PVDF, PPH og FRPP, med et omfattende utvalg av typer og spesifikasjoner. Spesielt kan våre spjeldventiler nå DN1000 i diameter, mens rør og fittings strekker seg opp til DN800, og adresserer markedshull og opprettholder vårt konkurransefortrinn i bransjen.
Veiledet av prinsippet om "teknologidrevet, holde tritt med tiden", tildeler Kaixin nesten 10 millioner RMB årlig til FoU. Vi sikrer overlegen produktkvalitet gjennom standardisert automatisert produksjon og streng innkjøp av importerte råvarer. I tråd med vår internasjonale utviklingsstrategi overvåker vi kontinuerlig globale markedstrender og utnytter digitale kanaler for å bringe høykvalitets "Made in China"-produkter til kunder over hele verden.
Ningbo • Fenghua FoU og produksjonsbase
Med en total investering på RMB 200 millioner har Kaixin Ultra-Pure Pipe Technology (Ningbo) Co., Ltd. etablert et nytt materiallaboratorium i samarbeid med universiteter og forskningsinstitutter, bygget en moderne produksjonsbase og installert 8 helautomatiserte produksjonslinjer for modifisert plast og 8 for polymermaterialer. Anlegget er dedikert til FoU, produksjon og bruk av nye modifiserte plast- og polymermaterialer. Kaixin er også forpliktet til å tiltrekke topptalent på tvers av disipliner, kontinuerlig drive produktinnovasjon og merkevareutvikling, med målet om å bli en globalt anerkjent leder innen FoU og produksjon av polymerventiler, rør og fittings.
Hedersbevis
  • honor
  • honor
  • honor
  • honor
  • honor
  • honor
  • honor
  • honor
  • honor
Nyheter